Doppelpunkt

Realisierungswettbewerb Grundschule Lemgo-West, Lieme

Sozial

AUFGABE
Die Stadt Lemgo beabsichtigt die Sanierung und Erweiterung oder alternativ den Neubau der Grundschule Lemgo-West in Lieme. Der aktuelle Gebäudebestand der städtischen Grundschule in Lieme ist nach dem aktuellen Raumprogramm räumlich für die Schule zu klein bemessen. Es fehlen Fachräume und Gemeinschaftsflächen, in denen die Schulgemeinschaft zusammenkommen kann und die multifunktional genutzt werden können.
Ob der Gebäudebestand geeignet ist, die schulpädagogischen Ansätze zu fördern, oder ob eine Neuorganisation der Räume in einem Neubau zielführender ist, soll aus den Ergebnissen der eingereichten Wettbewerbsbeiträge abgeleitet werden. Neben der Optimierung der Funktionalität steht aber auch die Nachhaltigkeit stark im Fokus. Die acht Klassenräume sollen für 30 Schüler*innen ausgelegt sein. Der Lern- und Ganztagsbereich soll zukünftig in zwei sozialräumlichen Organisationseinheiten (Cluster) zusammengefasst werden. In jedem Cluster sollen vier Klassen und damit zwei Jahrgänge entstehen. Mit der verstärkten Verschränkung von Unterricht und Ganztag verändert sich auch die Teamstruktur: Lehrkräfte, Erzieher*innen, Schulsozialarbeit, 1-Kräfte und MPT-Kräfte (Multiprofessionelle Teamkräfte) sowie Sonderpädagogen werden künftig in Teams in der 4er-Clustern zusammenarbeiten. Die Schule soll ein Ort des Lernens und Lebens werden, da sowohl das Personal als auch die Schüler*innen zukünftig immer mehr Zeit in der Schule verbringen.


VIER KINDERRIEGEL FÜR LIEME

LEITIDEE & ENTWURFSKONZEPT
Die zentrale Leitidee des Entwurfs ist die Transformation des Bestandsgebäudes in eine zukunftsfähige Grundschule, die sowohl den Anforderungen aktueller als auch zukünftiger Lernformen gerecht wird und den Kindern einen inspirierenden Raum zur Entfaltung bietet. Dabei steht insbesondere die Aufgabe im Fokus, die vorhandenen, aber ungenutzten Standortpotenziale zu identifizieren und zu aktivieren. Gleichzeitig galt es, durch frühere Sanierungen entstandene Missstände - wie die mangelhafte Erschließungssituation und die Angsträume zwischen Schule und Sporthalle - gezielt zu beheben und das Schulumfeld nachhaltig zu verbessern.

STÄDTEBAU
Aufgrund der Sheddach-Form und der angemessenen Gebäudehöhe fügt sich der Entwurf städtebaulich harmonisch in die Umgebung ein. Die markante Trapezform bildet im Westen eine klare Adresse aus und entschärft im Osten die bislang schwer einsehbaren Angsträume zwischen Sporthalle und Bestand. Durch die baukörperliche Staffelung wird der Entwurf trotz seiner Größe maßstäblich in die bestehende Struktur des Ortes integriert. Gleichzeitig stellt er eine gestalterische Verbindung zur Sanierungshistorie der Schule her, indem die charakteristische Vierteilung des Bestands spielerisch aufgegriffen wird.

FREIRAUMPLANUNG
Der offene Schulhof zieht sich im westlichen Grundstücksbereich entlang der natürlichen Hanglage zu einem klar gegliederten Freiraum auf inselartige, aktiv nutzbare Zonen prägen das Zentrum des Schulhofs. Die ruhigeren Randbereiche bieten geschützte Rückzugsorte für freies Spiel oder unterrichtsergänzende Aktivitäten. Der Hauptzugang zum Schulgebäude wird durch eine organisch geformte Stufenanlage betont, die sowohl Aufenthaltsqualität als auch bewegungsorientiertes Spiel vereint. Die Freianlagen rund um die Schulgebäude sind durch ein barrierefreies Wegenetz miteinander verbunden und gewährleisten eine inklusive Nutzung für alle. Eine markante Linienbemalung schafft Orientierung, verbindet die einzelnen Bereiche gestalterisch und unterstützt gleichzeitig die spielerische Wahrnehmung des Raums. Das ökologische Konzept legt neben dem Erhalt des bestehenden Baumbestands besonderen Wert auf vielfältige, biodiversitätsfördernde Neupflanzungen, die ein lebendiges Lernfeld zur Vermittlung von Wissen über die heimische Tier- und Pflanzenwelt schaffen.

ERSCHLIESSUNG
Die Erschließung des Schulgeländes erfolgt einerseits über die südöstliche Seite mit der weiterhin angebundenen Bushaltestelle und andererseits über die südwestliche Seite, an der sich ein Parkplatz sowie eine gut erreichbare Kiss+Ride-Zone befinden. Der Kurzhaltebereich ist so angeordnet, dass insbesondere für jüngere Kinder ein direkter, sicherer und barrierefreier Zugang zur Schule gewährleistet ist Entlang dieses Weges entsteht durch vielfältige Aufenthaltsangebote sowie altersunabhängige Spiel- und Bewegungsmöglichkeiten ein lebendiger und einladender Ankunftsbereich, der sich funktional und gestalterisch in das Gesamtbild einfügt.

FUNKTIONALITÄT
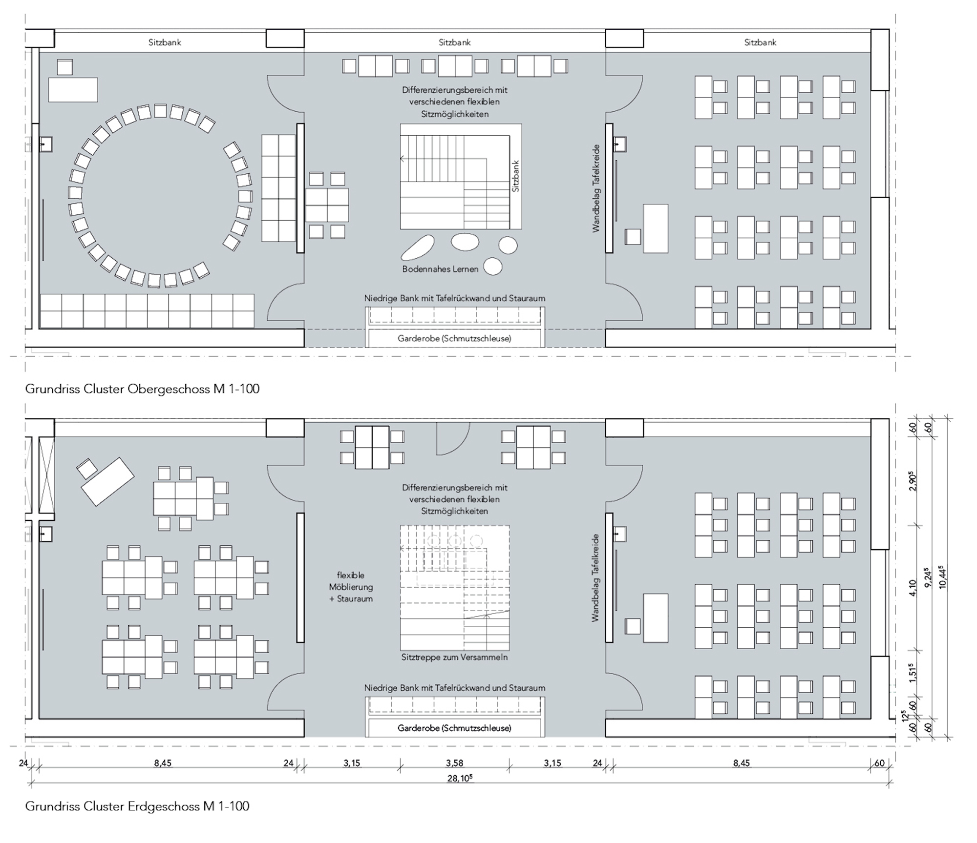
Das Gebäude ist in klare Nutzungsbereiche gegliedert. Aufgrund der räumlichen Nähe zum Parkplatz ist der südliche Bestandsriegel im Erdgeschoss größtenteils der Verwaltung vorbehalten. Im Untergeschoss befinden sich die zentralen Sonderflächen, während im Obergeschoss der Ganztagsbereich untergebracht ist. Im nördlichen Bestandsriegel liegen die Cluster-Bereiche. Mittig erstreckt sich der verbindende Gemeinschafts- und Fachraumbereich, der zahlreiche Rückzugsräume und Nischen für individuelles Lernen sowie Spielmöglichkeiten bei Schlechtwetter bietet. Im Erdgeschoss stehen das Foyer, die Aula, die Mensa und der Musikraum autark für große öffentliche Veranstaltungen zur Verfügung.


Architektur: janofischer GmbH

Landschaftsarchitektur: studiolandschaft